
¿Estás pensando en ser propietario? ¿Te gustaría invertir en el sector inmobiliario? Cielo Bennett pone a tu alcance la oportunidad única de ser propietario, o invertir en una participación de nuestro Crowdfunding inmobiliario, en nuestro nuevo proyecto en Puntas de Manga. ¿Te gustaría saber como?

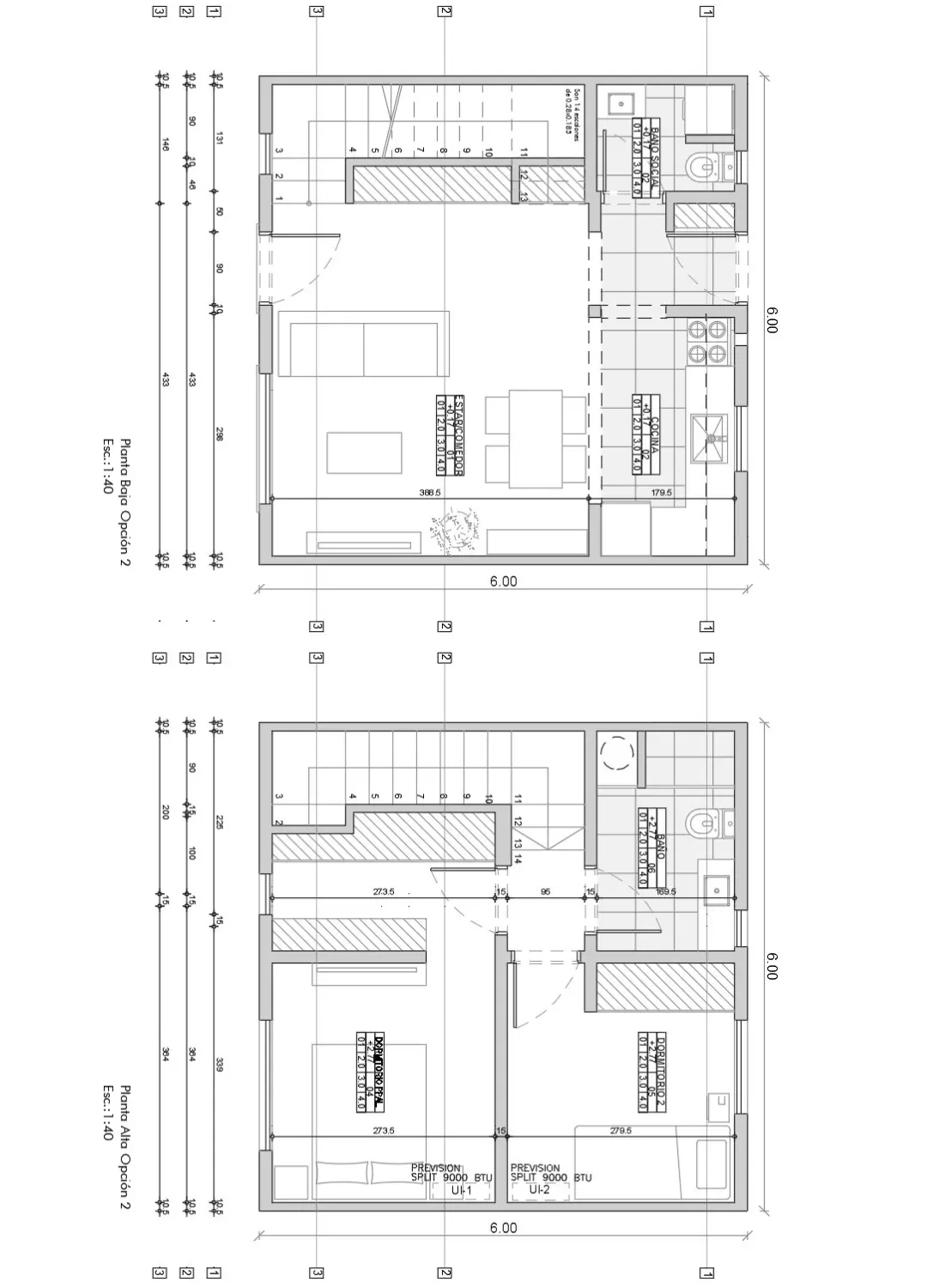
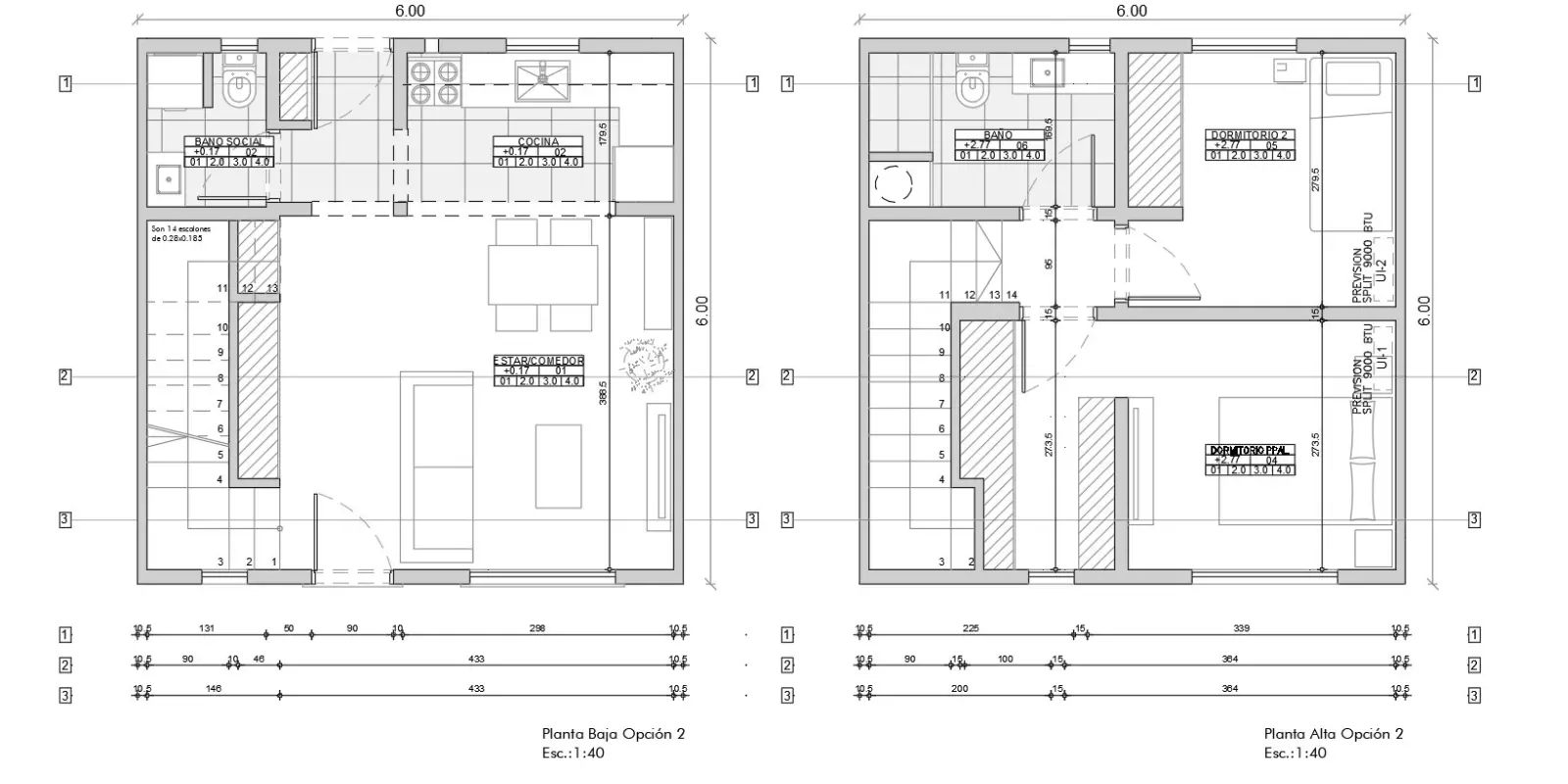
Si compras unidades en esta etapa tendrás un gran ahorro. A modo de ejemplo, una unidad de 2 dormitorios con 72m2 habitables + parrillero tendrá un valor de USD 87.000 pero a través de DINAVI quedará subsidiada con un valor de USD 61.000
Obtendrás un ahorro de USD 26.000!!!

Tanto si eres un inversor grande o pequeño, podés comprar tu participación en nuestro Crowdfunding de manera sencilla y hacer trabajar tu dinero con, según estudios de mercado, un rendimiento del 10% en renta y un 12% más por su venta.
Nos encargamos de brindar transparencia en cada etapa del desarrollo del proyecto.
Porque gracias a un minucioso estudio de mercado podemos visualizar una gran posibilidad de rentabilidad en su inversión.
Porque nuestra trayectoria como empresa, junto con nuestros valores, nos hacen una opción confiable al pensar en un fondo de inversión inmobiliario en Uruguay
Porque con Cielo Bennett no necesitas una gran inversión para hacer crecer tus ahorros.
Porque con Cielo Bennett invertir en Uruguay nunca fue tan fácil. Nos contactas y te explicamos como.
Porque lo respalda una empresa con gran trayectoria en el desarrollo de proyectos, formada por un grupo profesional comprometido con generar resultados.